動線&収納に配慮したリノベで家事効率がアップ。家族の時間を楽しめる住まいに
リビングの壁一面を親子で使えるワークスペースに。オープンな本棚、扉付き収納、引き出し収納を組み合わせ、すっきりまとめました。常に家族の気配を感じられる、明るい空間です。
DATA
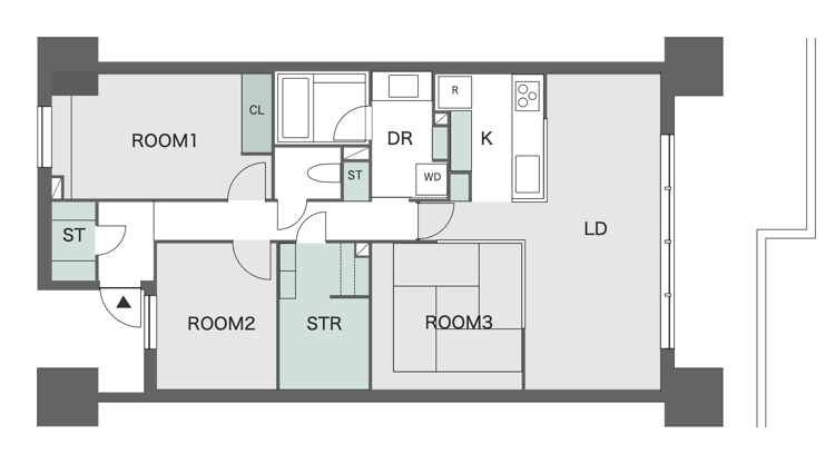
間取り図
こちらの事例は、リノベりすの姉妹サイトSUVACO(スバコ)の「専門家紹介サービス【すばこと】」を利用してアドバイザーに相談し、リノベを実現したお宅です。

紹介サービス アドバイザー:竹村のコメント
家事動線のいい間取りや、キッチンの向きを変えるなどのレイアウト変更のほか、リモートワークができるスペースや、お子さんのスタディスペースもご希望でした。
建築家とのリノベを希望していらしたので、建築家とリノベーション会社の違いなどもご説明しながら数社をご提案させていただきました。
プランのよさはもちろん、コストバランスの面でも碧山さんがベスト、という結論に至り、リノベを進めることになりました。素敵な家づくりのご縁をおつなぎできたことをうれしく思います!
自らの子育ての経験を踏まえ、暮らしの変化に柔軟に対応できるリノベーションを提案
家族の時間を大切にするために、要望を丁寧に伝えてプランを検討
ともにフルタイムで仕事をしているKさん夫妻。日々忙しくしているからこそ、新しい住まいに真摯に向き合い、家族の時間を大切にしたいと思っていました。リノベーションの設計は+Marchitects(プラスエム・アーキテクツ)に依頼。打ち合わせでは、夫妻のどちらかが主導権を握るのではなく、さまざまな物事を2人で考え、時には子どもの意見を取り入れて決めていきました。
住みたい家や家族のあり方についてしっかりとしたポリシーを持つ夫妻は、したいくらしのイメージや持ち物のサイズ、ボリュームなどついて要望を丁寧に伝え、それを受けて提案されたプランをじっくりと検討しながら進めていきました。
今回のリノベで設計者が最も印象に残っているのは、クローゼットを中心とした衣類管理のプランだそう。「はじめに、無駄とも思える廊下を、子供部屋からも廊下からも使えるウォークインクローゼットのように使ってはどうか、と提案させていただきました」。さらに廊下の反対側にはランドリースペースがあるので洗濯動線がスムーズ。子どもたちには自分のものを管理できるようになってほしい、という親の願いも叶いました。
家族が一緒に作業しやすい、II型のアイランドキッチン
フルオープンのキッチンは、夫妻が一緒に料理や片付けができ、子供も参加しやすい広さに。シンク側をアイランドにしたII型キッチンで、奥には大容量のパントリーもつくりました。
玄関は、既存の広いシューズクロークのスペースをゆったりとした玄関収納に変更。湿気が溜まりやすい場所だったので、縦格子の扉で通気性を確保。見渡しやすく通気性が良くなったことに加えて玄関土間が広くなったことも、うれしいおまけでした。
そのほかの画像を見る
ビフォー・アフター
MATERIAL
床:オークフローリング、塩ビタイル
壁:ビニルクロス
天井:ビニルクロス
INSTRUMENTS
キッチン:造作(田中工芸)
浴室:LIXIL
洗面台:造作(アールプラン)
この事例のリノベーション会社情報をみる
+Marchitects(プラスエム・アーキテクツ)
中心価格帯
対応エリア








リノベりす編集部コメント
生活全般の動線がスムーズで、くらしやすそうな間取りです。ファミリークローゼットやリビングの棚など、必要な場所に最適な収納があるので、出し入れしやすく、すっきりした住まいになっていると思います。オープンなワークスペースは家族の交流の場にもなりそうですね。