見せない美学を貫いたマンションリノベーション。適切な収納ですっきりと洗練された空間に
ハコリノベ (設計・施工)
インパクトの強い黒と温かみのあるベージュを組み合わせたLDK。壁や天井にアールのデザインを取り入れて、ひとつの空間を美しく印象的に。
DATA
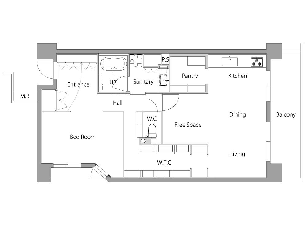
間取り図
時間がたつほど好きになる。そんなお気に入りの「ハコ」をつくる
黒×ベージュの空間にアールデザインを散りばめて
モダンでスタイリッシュな印象の黒と、柔らかな印象のベージュを基調とした住まい。生活感を意識させない、落ち着きのある空間が広がっています。
こちらにくらすのは、30代の夫妻と子どもの3人家族。築26年のマンションをフルリノベして、間取りもインテリアも大きく変えました。
めざしたのは、「家っぽさ」をそぎ落とした、住まいのかたち。キッチンは、家電や食材などをすべてパントリーに入れ、表には棚ひとつないスタイルに。床材、水栓金具、照明を黒で統一することで、独時の世界観をつくり上げました。
壁と天井はあえて塗りムラを楽しむベージュの塗装仕上げに。自然光や照明の灯りによって生まれる美しい陰影が、空間に奥行きをもたらしています。
デザインのポイントは角を丸くした「アール」。LDKの天井や開口部に取り入れ、さらに玄関はアールと間接照明の組み合わせで印象的な住まいの顔に。また、各所の出隅もアールで仕上げています。
将来に備えたフレキシブルな間取り
間取りは3LDKから1LDKに。玄関、洗面所、パントリー、ウォークスルークローゼットと充実した収納スペースを確保し、生活の中心となるLDKをすっきりとまとめました。
リビングの一角に設けたフリースペースは、ベッドスペースにも変えられるフレキシブルな空間。
一方、エントランスとつながるベッドルームは、2つの個室に分けることも可能なので、子どもが成長した時など柔軟に対応できます。
そのときどきの家族の変化にフィットするよう、常に進化する住まいになりました。
そのほかの画像を見る
MATERIAL
床:フロアタイル、モルタル(玄関)
壁:塗装、タイル、クロス
天井:塗装、クロス
建具:枠なし仕様
この事例のリノベーション会社情報をみる
ハコリノベ
中心価格帯
対応エリア












リノベりす編集部コメント
生活感の漂うものが目に入らない、非日常を感じる住まいですね。各所に設けた広い収納に日用品をしまうことで生活空間がシンプルにまとまっています。シンプルな空間だからこそ、アールや黒色が引き立っていると思いました。