大人4人がくらす3階建て・二世帯リノベーション。家族が集まってゆったりできるスペースを各階に
One's Life Home (設計・施工)
ホテルライクな3階のリビング。ヨーロッパの古い建築やデザイン、新しい建築物を見ることが好きな夫のイメージを形にしました。65インチの壁掛けテレビやバーカウンターも取り入れて居心地のよい空間に。
DATA
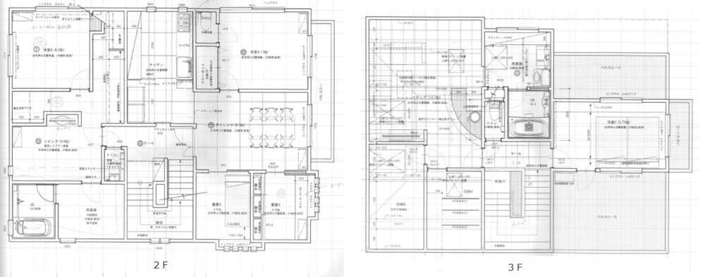
間取り図
建築家とつくるオンリーワンのデザインを、物件探しからワンストップで
リノベーションの面白さを知り、妻の実家を二世帯に
夫妻ともに仕事が多忙を極めているKさん。新居を考え始めた当初は、新築や建て替えなど方向性が決まっておらず、さまざまな会社に話を聞きに行ったのだそう。
そのなかで、建築家とコラボレーションしているOne's Life Homeに注目。「間取りプランのの面白さや施主のこだわりに寄り添い一緒につくりあげるスタイル」に心を動かされ、妻の実家を二世帯にリノベーションし、家族と一緒に住むことを決意しました。
家族は、夫妻、妻の母、妹の大人4人。木造・3階建ての2階と3階を住居とし、2階は共有のダイニング&キッチン、夫妻それぞれの書斎、母と妹の個室と水まわり、3階はリビング、寝室、水まわりを配置しました。
仕事と家事を両立できる工夫もたっぷり
2階のダイニング&キッチンを家族みんなの場所に。誰もが使いやすいレイアウトを取り入れ、忙しい夫妻もラクに家事ができるよう、使い勝手や清掃性も重視しました。
ダイニングは「主張しすぎず、単調になりすぎない」カラーコーディネート。4人掛けテーブル+空間のゆとりが、くつろぎの空間を演出しています。
キッチンは広さと作業スペースをしっかり確保し、カップボードの幅も広げて料理と菓子づくりを同時に楽しめる空間に。レンジフードやガスコンロ、水栓などの設備機器は性能を優先し、さらに独立型でありながら出入口をオープンにすることで、スムーズな動線を確保しています。
そのほかの画像を見る
この事例のリノベーション会社情報をみる












リノベりす編集部コメント
2階のダイニングとキッチン、3階のリビングと、ゆったりとしたスペースで家族団欒ができる二世帯住宅ですね。仕事が忙しい夫妻のための書斎や水まわりも使いやすそうです。