玄関と勝手口を回遊動線でつなぐマンションリノベ。本棚&キャットウォークで人も猫も楽しく
ひかリノベ (設計・施工)
LDK、書斎、防音室をひとつの空間にレイアウト。小上がりとカウンターテーブルを組み合わせたダイニングが特徴的です。小上がりは掘りごたつ&収納スペースとしても使える優れもの。
DATA
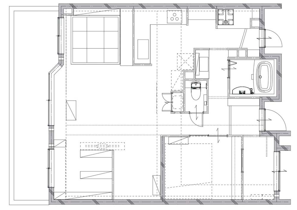
間取り図
物件・設計・施工管理のワンストップサービスと、その後もつづく安心を。
リビング、ダイニング、キッチン、書斎をワンルームに
マンションでありながら、メインの玄関とは別に勝手口もある戸建てのような住まい。リノベーションでは、勝手口からの動線を活かしつつ、メインの玄関からも、洗面コーナー~ランドリーコーナー~キッチンをぐるっと行き来できる回遊式プランを採用しました。
もとの間取りは3LDKでしたが、ベッドを置く個室だけを確保した1LDKに。以前は3つの空間に分かれていたバルコニー側には、リビングとダイニング、書斎をひと続きに配しました。キッチンを対面式に変更し、その前のダイニングには椅子代わりの小上がりを設置。畳敷きの小上がりは、冬場は掘りごたつとして使えるオリジナル設計です。
愛猫のための工夫がいっぱい
天井に巡らされた木の板は、愛猫のためのキャットウォーク。造作の棚やカウンターと同じ樹種、同じ塗装で、インテリアに馴染ませながら、空中に猫の散歩道をつくりました。書斎には3列の本棚を備えつけましたが、こちらもキャットウォークの一部に。窓辺のベンチは、愛猫と一緒に日向ぼっこするのにぴったりのコーナーです。
また書斎の隣には、ピアノ演奏用に置き型の防音室を設置。リビングの本棚と防音室のラインを揃えることで、ゆとりを感じるデザインになっています。
そのほかの画像を見る
MATERIAL
床:フローリング(イクタ・銘木フロアーラスティックブラックチェリー)
フロアタイル(サンゲツ・カーサストーン/トイレ・洗面・ランドリー)
壁:ビニールクロス(サンゲツ)
天井:ビニールクロス(サンゲツ)
INSTRUMENTS
キッチン:LIXIL(シエラ・グレージュスタッコ)
浴室:LIXIL(リノビオ1418)
洗面台:アイカ
トイレ:TOTO
この事例のリノベーション会社情報をみる
ひかリノベ
この会社のほかのリノベーション事例
もっと見る
関連するリノベーション事例
もっと見る














リノベりす編集部コメント
玄関や勝手口からつながる回遊動線が生活をスムーズにしています。多目的な小上がりによって、そのほかのスペースを広く使えているので、書斎や防音室もすっきり収まっていると思いました。愛猫ものびのびくらせる空間ですね。