音楽を愛する夫妻のマンションリノベ。壁一面のレコード収納とシアタールームで思いきり楽しめる住まいに
アートリフォーム (設計・施工)
リビングの壁一面には、思い出が詰まったレコードが整然と並んでいます。パーソナルソファやラグを置いて、好きな音楽をリラックスして聴ける特別な空間に。
DATA
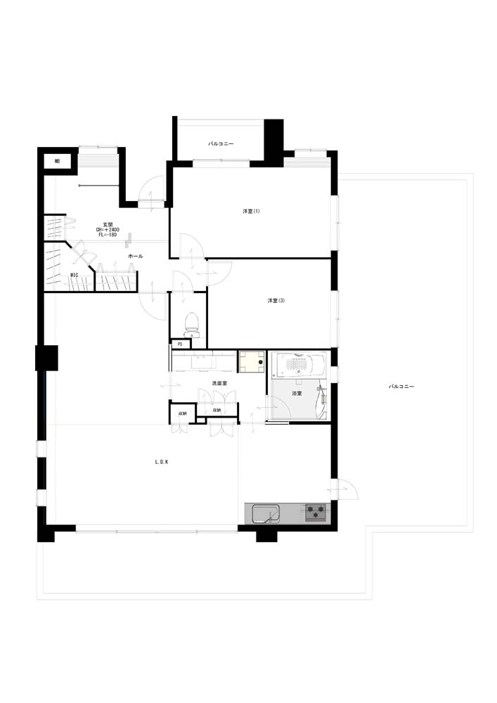
間取り図
住まいのリアルな課題点に、女性プランナーがさまざまなニーズに合わせて柔軟に対応
廊下と和室をなくし、趣味を極めるリビングに
音楽好きな夫妻がめざしたのは、音楽とともにくらす家。4LDK・90㎡超えのマンションの間取りや設備を一新し、音楽を思う存分楽しめる工夫を盛り込みました。
リビングダイニングは廊下や和室を取り込み、オープンな大空間に。キッチンの壁を取り払い、壁付けのI型に変更することで、さらに広く使えるようにしています。
リビングの壁一面には、レコード収納の棚を設置。既存の柱や梁を活かすレイアウトで、インテリアデザインの一部に組み込みました。もう一方の壁にはレコードプレーヤーやスピーカーを並べ、じっくりと聴くことができる音楽空間をつくっています。
ワークスペースとクローゼットを取り入れた玄関土間
洋室のひとつはプロジェクターを設置したシアタールーム。一面にスクリーン仕様の壁紙を張り、高画質な映像も楽しめるようにしました。
収納などは造りつけず、すっきりしたシンプルな空間に。濃色のアクセントクロスで引き締めつつ、華やかなカーテンやソファでメリハリをつけました。
玄関は、隣接する洋室を取り払って土間を広げ、ワークスペースとウォークインクローゼットを新設。既存の窓を活かしたレイアウトにすることで、機能性と開放感をバランスよく取り入れた空間になりました。
そのほかの画像を見る
ビフォー・アフター
MATERIAL
床:フローリング 朝日ウッドテック ヘリンボーンオーク(DK)、朝日ウッドテック MRX(リビング、ホール、洋室)
壁:タイル 名古屋モザイク 美濃古窯 ミッドナイトブルーMK069R2(キッチン)
建具:ウッドワン ピノアース
建具窓枠:サンゲツ リアテックシート
INSTRUMENTS
キッチン:クリナップ ステディア(食洗機・ミーレ)
浴室:TOTO マンションリモデルWY
トイレ:TOTO GGワンデーリモデル
この事例のリノベーション会社情報をみる
アートリフォーム
中心価格帯
対応エリア












リノベりす編集部コメント
レコードをたくさん収納できるリビングの音楽空間や独立したシアタールームで、趣味を思いきり満喫できる住まいですね。和室やキッチンをつなげて広々としたLDKにしたことで、どこに居ても視線が抜けて開放感があります。