通り庭がつなぐマンションリノベーション。本棚&ベンチで廊下を機能的にデザイン!
たすかけ 吉祥寺ラボ (設計・施工)
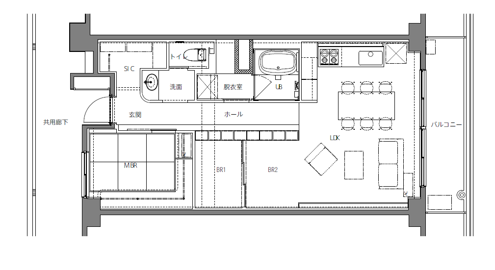
ゲストの笑顔を間近に感じながら、料理を作る時間さえも、大切な団らんの一部に。玄関からLDKまでの通り庭のような廊下には大きな本棚を設置。訪れたゲストとの会話の糸口にもなるスペースです。
DATA
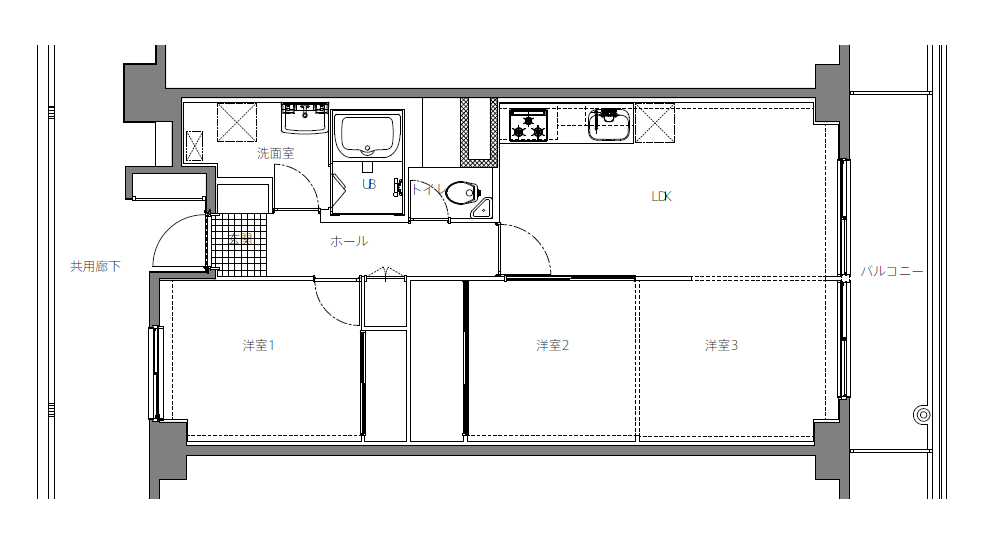
間取り図
建築家や家具屋とコラボしたリノベで、「自分らしさ」「家族らしさ」を提案
洗い出し仕上げの廊下は、光と風の通り道
玄関からLDKまで、まっすぐな長い廊下でつながる住まい。移動のためのスペースに、別の機能をもたせながら、「通り庭」のような空間に仕立てました。
廊下は、美しく個性的な洗い出し仕上げに。壁を立てずに、廊下と部屋の両方から使える本棚と気軽に座れるベンチを造り付けています。視線が抜ける本棚は、壁と比べると仕切り自体の存在感がやわらぎ、空間に広がりも。将来のくらしや家族の変化に備えて、1LDK~3LDKまで変更できる間取りとしました。また、あえて廊下からLDKへの入り口に建具を付けないことで、リビングの採光を玄関でも得られるようにしています。
趣味をとことん楽しめる工夫がいっぱい
料理やキャンプ、ファッションと、幅広い趣味をもつ施主。ゲストをもてなすことも多いため、オープンスタイルのダイニングキッチンを選びました。キッチンの前には、オリジナル製作の大きなダイニングテーブルを配置。会話をしながら一緒に料理をしたり、ゆっくりと食事をしたり、楽しみが広がるスペースになっています。
キャンプなどに使うアウトドア用品は、玄関土間に収納。寝室にオープンクローゼットをつくり、たくさんの衣類を使いやすく収納しました。寝室の畳の下にも、趣味のものや季節のものをたっぷり収納できます。
そのほかの画像を見る
写真:©Shuya Sato
この事例のリノベーション会社情報をみる










リノベりす編集部コメント
洗い出しや縦格子、たくさんの本に囲まれた廊下は、どこか特別な空間ですね。ゲストのおもてなしにもぴったりな意匠だと思いました。オープンなキッチン&ダイニングや大容量の収納など、くらしやすい間取りも魅力です。