子どもの独立を見据えたフルリノベーション。テラコッタとディープブルーが映えるヴィンテージ空間
アズ建設 (設計・施工)
床には本物のテラコッタタイルを使用。素焼きのテラコッタは厚みがあり、自然な色ムラが味わいに。ディープブルーの壁や経年変化が美しいコンクリートが空間にリズムをつくっています。
DATA
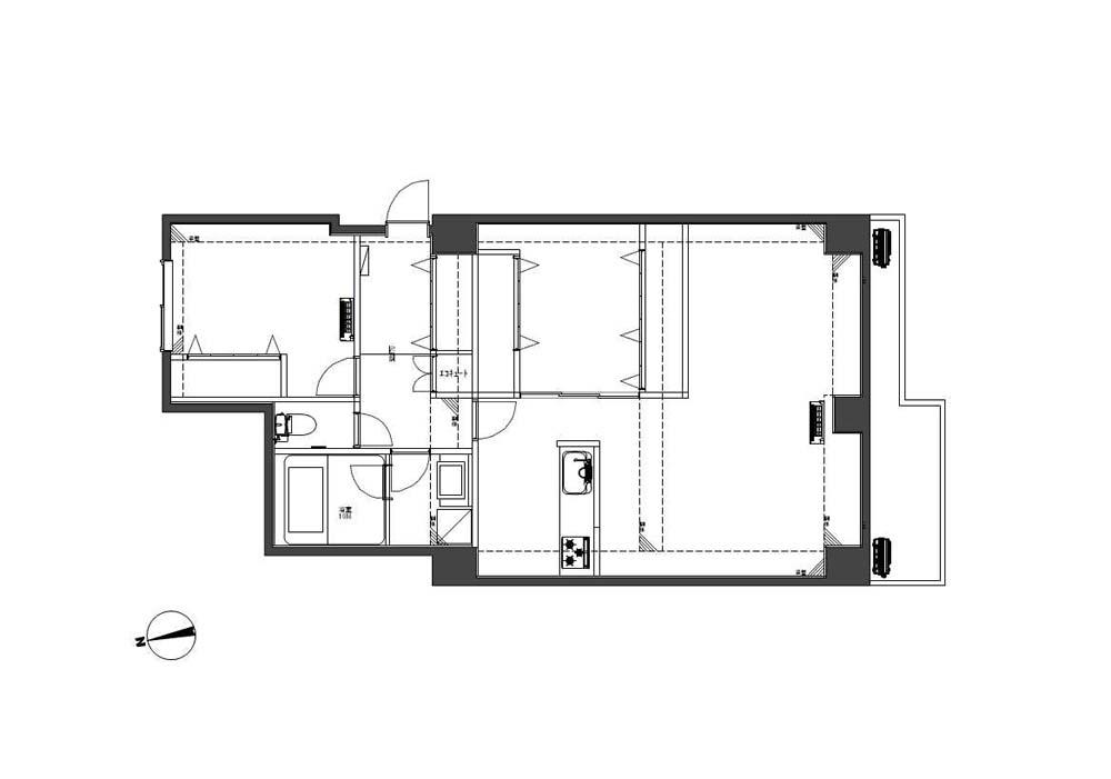
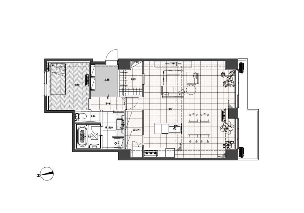
間取り図
技術力の高さに定評、ライフスタイルに合わせたこだわりの詰まったリノベーションを提供
将来のくらしを考えたフレキシブルプラン
おおよそ10年前に、アクセスも雰囲気も良いヴィンテージマンションを手に入れたMさん夫妻。まもなく夫が転勤になり、一時的に賃貸に出していました。その後戻ってきて、リノベーションを考え始めたのが、今から5年ほど前。長男の独立が見えてきたタイミングで、ふたりで住む家として間取りや設備を一新することにしました。
リノベーションはアズ建設に依頼。いつも読んでいた雑誌に「ヘリンボーンの施工が得意」と紹介されていたことと、設計から施工までワンストップで対応してくれることが決め手になりました。
もとの間取りは2LDKでしたが、長男の個室だけを確保した1LDKに。夫妻のベッドは当面、広くなったLDKに置き、将来は長男の部屋に移動する予定です。
好きなものを詰め込んだインテリアに
メインの床は、本物のテラコッタタイル。当初はヘリンボーン張りを希望していましたが、素焼きならではの温かみやぽってりした厚みに魅了されたのだそう。一方、壁は玄関とリビングの一部を「深海を思わせるディープブルー」に塗装。リビングのテレビ側の壁、そして天井全体を躯体現しにすることで、経年変化の味わいをインテリアに活かしました。
さらに、壁の断熱材や窓の性能アップで室内環境を改善。バリアフリーも整えるなど、現在だけでなく将来を見据えた理想の住まいを叶えました。
そのほかの画像を見る
ビフォー・アフター
MATERIAL
床:テラコッタタイル(LDK)、無垢フローリング(個室)、塩ビタイル
壁:塗装、躯体現し
天井:躯体現し
建具:造作
造作家具:ナラ材+塗装
INSTRUMENTS
キッチン:Panasonic
浴室:TOTO
洗面台:造作
トイレ:TOTO
この事例のリノベーション会社情報をみる












リノベりす編集部コメント
現在と将来のくらしを上手につなげたリノベーションプランですね。個室は一つにして当面ベッドはリビングに置く、というアイデアも参考になりそうです。テラコッタなどの素材感がヴィンテージマンションの佇まいによく合っています。