リノベで叶えるヒュッゲなくらし。子どもと愛犬に優しいプラン
空間社 (設計・施工)
北欧で育った妻の「ヒュッゲなくらしの価値観」から生まれた居心地のよい住まい。日々の生活に欠かせないキッチンは、アールを付けたカウンターやディテールにこだわった扉、タイルを散りばめて癒しの空間に。
DATA
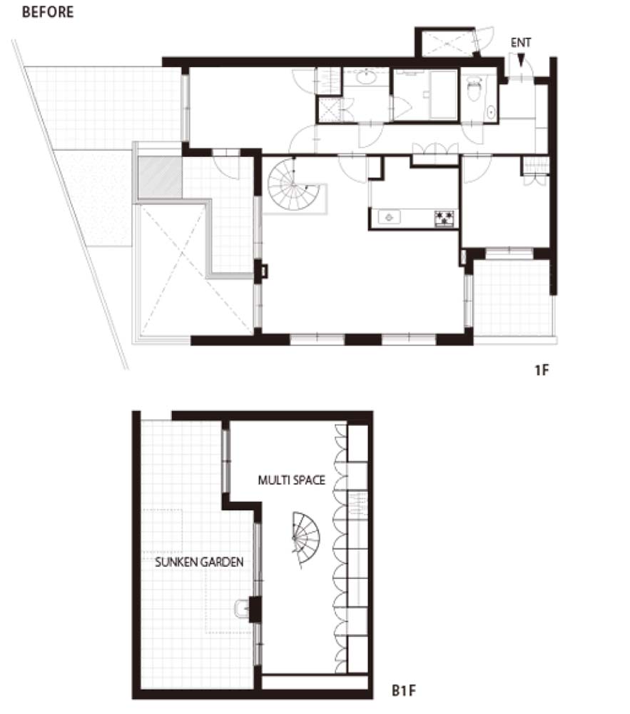
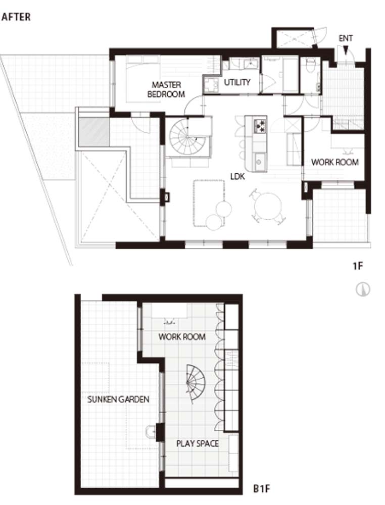
間取り図
「小さいからやれること」を大切に、てまひまかけた家づくり
クリエイター夫妻の家づくりは中古マンション購入からスタート
都心でありながら閑静な場所に建つ、築24年のマンション。こちらにくらすのは、子どもが生まれることが分かったのを機にマイホームを計画し、中古マンション+リノベーションを選んだというSさんです。
新居の希望は「明るく開放感があり、子どもと愛犬に安全で優しい設計」。そして「家族が笑顔で団らんできる、ほっこりしたくつろぎ感のある家」も大きなテーマでした。また夫妻ともにクリエイティブな仕事をしているため、それぞれ独立したワークスペースをリクエスト。リノベーション(設計・施工)は空間社に依頼し、くらしも仕事も充実して「帰ってくることが楽しみになる」住まいをめざしました。
くつろぎ感あふれる、ロースタイルのリビング
LDKはキッチンと廊下の壁を取り払い、ひと続きの空間に変更。オープンにしたキッチンにはハイチェアを合わせ、軽い食事などを取れるようにしました。妻は丸いダイニングテーブルに、学生時代から憧れていたアアルトの照明をセレクト。「キッチンを家族で囲んだり、友人を招いて楽しい時間を過ごしたり、家でゆったりすることが最高の時間になっています」。
リビングは背の低い家具やインテリアを中心としたロースタイルに。まだ子どもが小さいこともあり、安全性や遊びやすさに重点を置き、くつろぎの床座リビングとしました。床材は、子どもと愛犬の足に優しい自然素材のコルクフロア。「床は汚れもサッと拭きやすく快適で、デザインもとても気に入っています」と夫も満足そうです。
オープンな間取りに好きなデザインや安全な素材を散りばめた居心地のよい住まい。毎日帰るとホッと落ち着けるような場所になりました。
そのほかの画像を見る
この事例のリノベーション会社情報をみる














リノベりす編集部コメント
明るいオープンキッチンやロースタイルのリビング、お気に入りの照明を吊るしたダイニングなど、ヒュッゲにくらす空間が実現しています。子どもや愛犬が安心できるアイデアも盛り込まれていて、家族みんなが快適に過ごせますね。