段差と素材でゾーニング。片付け上手なワンルーム風リノベーション
entrie(エントリエ) (設計・施工)
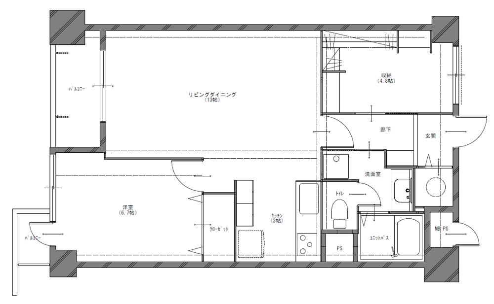
間取りは大きく変えず、水まわりも既存の場所のまま。仕上げ材を変えたり室内窓を取り付けたりして、自分好みの空間をつくりました。
DATA
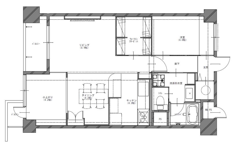
間取り図
リフォーム会社の実績に真新しさを追求するリノベーションブランド。
中古ならではの制約も考慮した物件選び
結婚を機にライフプランや資金計画を話し合い、マイホームの購入を決めた施主夫妻。新築も選択肢にあったものの、妻がリノベーション会社・エントリエで働いていることもあり、中古+リノベーションを選びました。
フルリノベを前提に、築年数が古い物件を中心に探していましたが、構造体に直接仕上げ材を張る直床や直天井だったり、あるいは壁構造だったりとプランに制限が掛かるつくりも数多くありました。
そこで事前に担当者から、リノベーションの制約になりそうな部分をアドバイスしてもらい、理想のマンションを購入。リフォーム履歴があり、一見きれいな部屋でしたが、見えない配管などは古かったので、交換するように勧められたといいます。
「一方、窓の性能は大規模修繕で上がっていると教えてもらったので、手を加える必要がありませんでした。安心して計画を進められたと思います」
好きなものを集めて「自分たちの家」に進化する
希望したのは「ゆるやかに仕切られたワンルームのような空間」と「置きっぱなしが片づける場所にできるような動線や間取り」。室内窓や引き戸でそれぞれの空間をつなぎつつ、玄関横に土間スペース、必ず通る動線上にはウォークインクローゼットを配置。どちらも閉めれば中は見えないので、無理をせず、すっきりした空間がキープできるようになりました。
ワンルームのように連続性のある間取りですが、「用途で分けたい」とあえて床に段差をつけてゾーニング。食事、くつろぎ、睡眠など目的によって高さを変え、さらに素材も変えることで感覚的に分かりやすくしています。
家づくりを振り返り、「好きという感覚を信じて選んだ方が、満足度が上がると思います。自分たちにとっての優先度や暮らしやすさをしっかり考えて判断することが大切ですね」と夫妻。引っ越してからは旅行先でも「この家に置きたいもの」をお土産として選ぶようになったのだそう。
「家は完成して終わりではなく、住んでからも自分たちらしく育っていくもの。お気に入りのアイテムが増えていくことで、少しずつ自分たちの家になっていく実感があります」
そのほかの画像を見る
ビフォー・アフター
この事例のリノベーション会社情報をみる










リノベりす編集部コメント
ワンルームのような開放感がありながら、用途別に段差で分けた住まい。素材や色味もそれぞれ違うので、見た目に分かりやすく、メリハリのある空間になっていると思いました。ラクに片づけられる収納のアイデアも良いですね。