団らん、おもてなしに大活躍の4mキッチン。実家をフルリノベして快適な住まいに
フレッシュハウス (設計・施工)
アクセントウォールとラグを使って、リビングとダイニングキッチンをさりげなく区切ったLDK。落ち着いた色合いでまとめた空間に、花模様の螺鈿(らでん)細工があしらわれた箪笥が、華やかさを添えています。
DATA
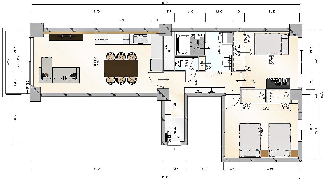
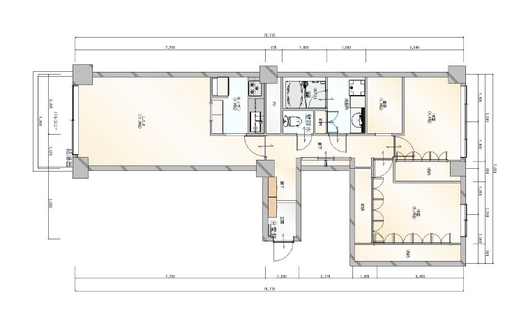
間取り図
確実に重ね続けたリフォーム実績をもとに、住まいにもっとも大切な要素を取り入れる。
築年数を考慮し、スケルトンリノベーションを選択
同じマンション内の実家をリノベーションして住むことになった施主ファミリー。築年数が古いこともあり、配管や配線なども含め、すべてを一新できるスケルトンリンベーションを選びました。
アメリカ出身の夫と日本人の妻がこだわったのは、キッチンの使い勝手。そこでまず、独立してたキッチンの壁を取り払ってひと続きのLDKをつくり、その一角に幅4メートルのL型キッチンを配置。効率よく調理ができる広いワークトップに加え、フロアユニットにはさまざまな便利機能を備えつけました。さらに天井までの高さを無駄なく使い、収納量もたっぷりと確保。隠す収納と見せる収納を使い分け、とデザイン性を両立させています。
テーブルを置かず、余白のあるリビングに
約30㎡のLDKは、バルコニーのある南側をリビングに。あえてテーブルは置かず、壁に沿って大きなソファをL型に配しました。ソファ背面のアースカラーの壁は、空間を引き締めるカッコいいアクセント。余白を持たせた空間と響き合い、アートやソファ、インテリア雑貨をいっそう引き立たせています。
プライベート空間の寝室や子ども部屋、水まわりも間取りや設備を一新。ライフスタイルに合わせて、取り出しやすく戻しやすい収納もつくりました。洗面室には壁を新設し、物干しスペースを確保しています。
そのほかの画像を見る
INSTRUMENTS
キッチン:Panasonic(Lクラス)
この事例のリノベーション会社情報をみる
フレッシュハウス
中心価格帯
対応エリア





リノベりす編集部コメント
4mのキッチンが圧巻でした。色々な機能を組み込んだり、吊り戸の色を変えたり、と使いやすい工夫がいっぱいです。ダイニングと一体感があるので、配膳や片付けに便利で、コミュニケーションも取りやすいですね。