美しいコントラストを生み出す照明プラン。範囲を絞って予算内で収めた単身リノベ
フレッシュハウス (設計・施工)
床・壁・天井をダークトーンで統一し、こだわりの照明を配置。デザインの違う照明を組み合わせることで、さまざまな陰影が生まれています。
DATA
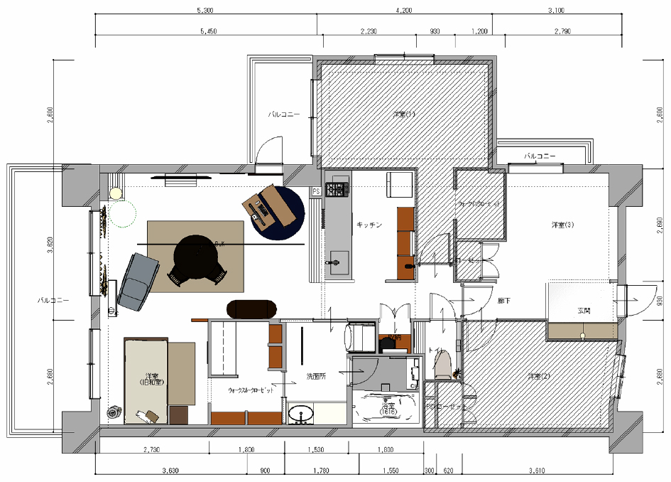
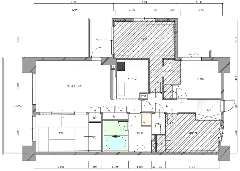
間取り図
確実に重ね続けたリフォーム実績をもとに、住まいにもっとも大切な要素を取り入れる。
青みがかった漆黒の珪藻土をメインカラーに
長年、賃貸に出していた築18年・4LDKのマンション。ひとり暮らしになったこときっかけに、リノベーションをして住むことにしました。
リビングダイニングとベッドコーナーの壁と天井は、青みがかった漆黒の珪藻土、床はダークカラーのパーケットフローリングに。全体を照らすシーリングライトは使わず、部分的に照らす照明を高さ違いで上手に組み合わせることで、イメージ通りの空間に仕立てました。
それぞれ個性のある照明のなかには、こだわりの施主支給品も多数あるのだとか。
「平面的に見えて明るすぎる日本の照明が好みではありませんでした。思い切って壁や天井の色を暗くして照明の数も絞ってみましたが、気分によって雰囲気を調整出来てとても良かったです」
空間レイアウトの工夫で、快適な動線をつくる
間取りは、くらしの中心となるLDKと水まわりに予算を集中。使いにくかった和室をLDKに取り込み、一角にオープンなベッドコーナーを配しました。
ベッドコーナーの隣りにはウォークインクローゼット、その奥に洗面脱衣室を配置。朝の身支度や眠りにつく動作がスムーズに流れるようになっています。
キッチンはアールの壁が印象的な吊り戸のない対面式。背面のシェルフ型の収納は、入れるものに合わせてオリジナルで製作しています。
主に生活するスペースは、愛猫も動きやすいようにと配慮した結果、ほとんど扉を付けないワンルームのようなつくりに。玄関からLDKに入るドアだけは、型ガラスのステンドグラスをこだわって選びました。
そのほかの画像を見る
ビフォー・アフター
MATERIAL
壁:珪藻土
天井:珪藻土
INSTRUMENTS
キッチン:toolbox
浴室:クリナップ セレヴィア
洗面:アイカ
トイレ:TOTO ネオレスト
この事例のリノベーション会社情報をみる
フレッシュハウス
中心価格帯
対応エリア








リノベりす編集部コメント
部屋全体を明るくするのではなく、照らしたいところを絞って照らすことで、雰囲気のある住まいになっています。塗り壁の素材の表情も引き立っていますね。生活に合った動線と扉のない間取りが快適そうです。