和と洋が溶け合うデザイン。動線を現代の暮らしに合わせて刷新したリノベーション
GLADDEN(グラデン) (設計・施工)
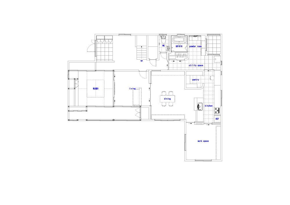
和室2間の片方を無垢フローリングのリビングに変更。ダイニングとの間仕切りとなる両引き分け戸は、和にも洋にも馴染むデザインに。上質インテリアでつくる、洗練されたミックススタイルです。
DATA
間取り図
海外に倣った「暮らしを楽しむ空間」を提供
和の趣を活かしたフルリノベーション
もともとの建物には、素材や建具など、和の住宅ならではの丁寧なつくりが随所に見られました。それらを 取り払うのではなく、洋のデザインと馴染ませるかたちで再構築。夫妻の希望は、二間続きの和室のうち片方の和室を洋室に変えてリビングにすること。さらに部屋全体を見渡せる、オープンな対面式キッチンもリクエストしました。
和の趣を残しながら洋の空間と違和感なくつなぐために、ポイントとなったのは空間を仕切る建具のデザイン。和と洋、どちらの空間にも溶け込む意匠を目指し、細部まで検討を重ねました。
またLDK の床には、和と洋のインテリアの双方と相性の良いナラ材のフローリングを敷き込み、住まい全体に統一感をもたらしました。
昔ながらの動線を見直し、現代の暮らしに合わせて刷新
リノベーション前は、廊下を中心とした昔ながらの間取りで、家事動線が分断されやすい構成でした。そこで今回 は、日々の家事や身支度がスムーズに行えるよう、動線計画を大きく見直し。
廊下を極力省き、洗面・クローゼット・ユーティリティをひと続きの空間として構成。洗濯物を「洗濯する・干す・畳む・収納する」という一連の動作が一か所で完結するプランとしました。さらにキッチンと洗面を隣接させることで、家事動線をコンパクトにまとめています。また、空間全体を回遊できる動線とすることで、家族の動きが重なりにくく、ストレスの少ない間取りを実現しています。
そのほかの画像を見る
この事例のリノベーション会社情報をみる
GLADDEN(グラデン)
中心価格帯
対応エリア













リノベりす編集部コメント
日本家屋の魅力とエレガントな洋のデザインがリノベでうまくつながっていますね。デコラティブすぎない洋のデザインだからこそ、見事なグラデーションが出来上がったのだと思います。ガラス入りの大きな建具は、どちら側から見ても空間に合っていて心惹かれます。