築50年の戸建てをスケルトンリノベーション。3世代家族が快適にくらせる間取りに大変身!
錬(れん) (設計・施工)
家族で共有するライブラリーは、リビングダイニングとひと続きに。壁いっぱいに本棚を造り付け、自由なスタイルで本を読める憩いの空間です。
DATA
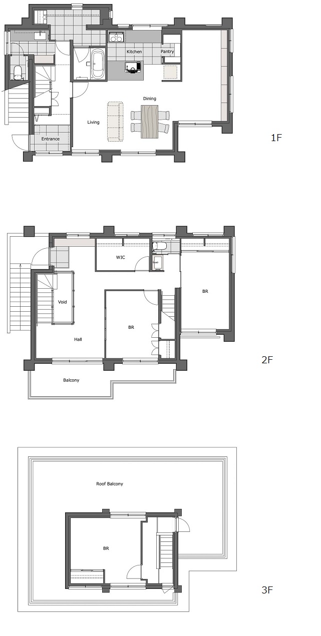
間取り図
色あせないモノづくりと、新たな価値を生み出すチカラは匠の業
防水性・断熱性・安全性をブラッシュアップ
3世代の家族がくらす、築50年の戸建て住宅。建築の仕事をしていた祖父が英知を結集して建てたRC造でしたが、ここ数年は老朽化が進み、使っていないスペースも多くありました。そこで、躯体以外をすべて取り去り、新たな間取りにつくり変えるスケルトンリノベーションを実施。設計・施工は、株式会社「錬」に依頼しました。
まず、漏水の原因にもなっていた増築部分を撤去。さらに欠損部分を補修しながら1階床下に1mたまっていた湧き水を排出し、防水工事を行うことからスタートしました。続いて、外周部すべてに断熱材を吹き付けるとともにサッシも入れ替え、断熱性をアップ。錆びていた手すりや段差が不ぞろいな階段も改修し、安全に生活できる住まいをつくり上げています。
家族みんなで楽しむライブラリースペース
1階は、玄関を吹き抜けにして自然光に包まれる空間に。壁を大きく取り払い、広々としたLDKをプランしました。キッチンはII型で、隣には大容量のパントリーを配置。シンクカウンターとリビングダイニングが対面するレイアウトは、コミュニケーションが取りやすく、家事動線もスムーズです。LDKから少し奥まった部屋は、壁一面に本棚を設けたライブラリー。3世代の家族が本でつながる、豊かなスペースになりました。また洗面室とランドリースペースを兼ねた脱衣室を分けて、家族みんなが気兼ねなく使えるようにしています。
2階は、個室とウォークインクローゼットに加え、大きなホールも。こちらはセカンドリビングやワークスペースとして活用する予定なのだそう。
3階は、個室+ルーフバルコニー。ルーフバルコニーへのアクセス方法を改善することで、アウトドアリビングにするなど活用の幅を広げました。
そのほかの画像を見る
この事例のリノベーション会社情報をみる







リノベりす編集部コメント
古く傷んでいた住まいが明るく開放的に生まれ変わっていますね。思い思いにくつろげるLDKやライブラリー、それぞれの個室が設けられ、生活しやすい間取りです。断熱などをしっかり改善し、家の性能も高まっています。