上質な自然素材をふんだんに。配管経路の工夫で対面キッチンを叶えたメゾネットリノベーション
湘南リフォーム (設計・施工)
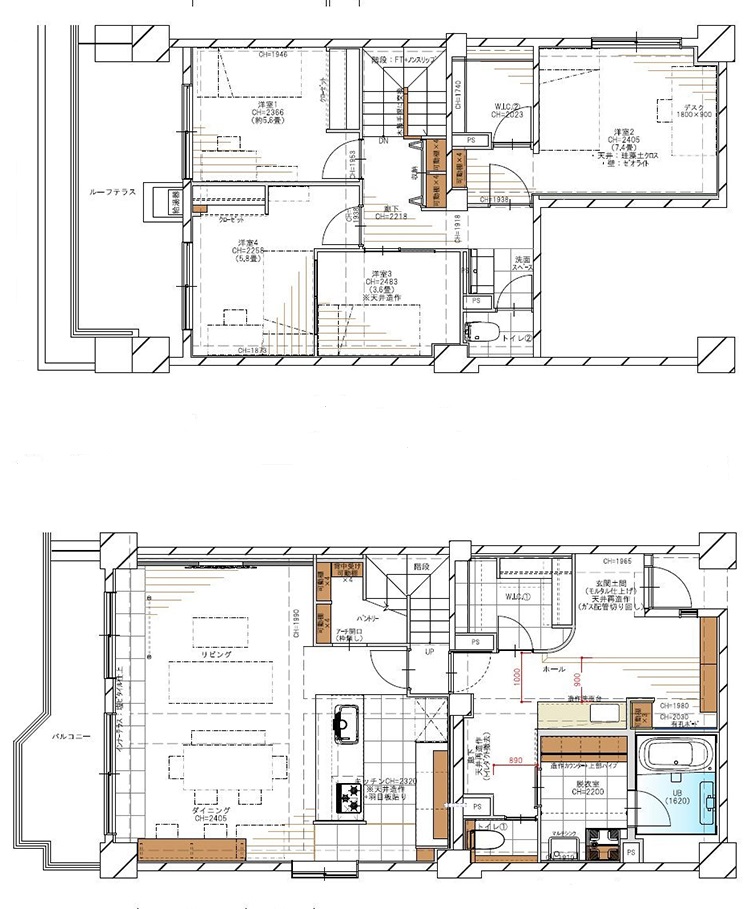
上階にそれぞれの個室を集約し、下階は家族4人でゆったり過ごせるLDKに。パブリックゾーンとプライベートソーンを分けることで、生活にメリハリが生まれています。
DATA
間取り図
その人にとっての"最高の家づくり”に真摯に向き合う
10年ぶり2回目のリノベで、自分たちのアイデアを形に
リノベーションを前提に、メゾネットマンションの最上階を手に入れたAさんファミリー。住んでいた分譲マンションを売却し、今のライフスタイルに合った家を探してようやく見つけた物件でした。
「10年ぶり2回目のリノベーションで、前回の経験を踏まえてやりたいことや取り入れたいデザインなど、アイデアが豊富にありました」とAさん。
築40年超のマンションで構造や規約上の制約があったため、慎重にリノベ会社を検討したといいます。
数社と打ち合わせを重ね、最終的に選んだのは湘南リフォーム。
「デザイン先行でプラン提案するリノベ会社が多いなか、通気性や生活動線などに配慮した快適な住空間を提案され、さらに憂慮すべき点もはっきり伝えてくれました。当初イメージしていた空間づくりの一部は実現困難と知って落胆を感じる一方で、信頼できる会社であるとの印象を受けました」
珪藻土と無垢フローリングがつくる心地よい空間
くらしの中で「質の良さ」を大切にしている妻は、ビニールクロスではなく、自然素材を希望。細やかなこだわりをもって、キッチンや内装材を選んでいきました。
「珪藻土と無垢フローリングの空間がつくり出す、何とも言えない清浄感は、新居で最も気に入っているポイントです」と夫妻。
なかでもキッチン周りはデザインも素材もとことん追求し、無垢板の天井やセラミック天板などを採用しています。
家の顔とも言える玄関は、ひと部屋分を取り込んで開放的な空間に。ホールには家族が並んで使えるワイドサイズの洗面台を設置し、隣接するウォークインクローゼットのアール壁やモルタルの土間を組み合わせることで、個性が感じられる場所になっています。
そのほかの画像を見る
ビフォー・アフター
この事例のリノベーション会社情報をみる
湘南リフォーム
中心価格帯
対応エリア













リノベりす編集部コメント
ひとつひとつの素材の良さが際立つ住まいです。プラン面では大きな洗面台や靴入れ、アール壁を配した玄関ホールが印象的でした。キッチンの配管などを実際の施工現場で確認できると、安心して進めることができますね。